Содержание статьи
Евродвушка, евротрешка, распашонка, мастер-спальня. Со всеми этими словами не каждый человек сталкивается в обычной жизни. Поэтому когда дело доходит до выбора квартиры, можно потратить много времени на попытки разобраться, что есть что на этих схемах. В этой статье расскажем, какие виды планировок бывают в 2026 году и каким покупателям на какие варианты стоит обратить внимание.
Что такое планировка квартиры 
Планировка — расположение комнат, коридоров и санузлов внутри квартиры. Отрисовка планировки может быть рекламная, а может строительная. На рекламной будут указаны только помещения и их площади. Иногда застройщик добавляет условные обозначения предметов мебели: диван, кровать, стол, ванная. На строительной также будут обозначены строительные оси и/или расстояния до них. Благодаря строительным планировкам можно на этапе еще не построенного дома прикинуть, какие предметы мебели встанут в тот или иной угол.


Какие бывают виды планировок
По расположению комнат
Распашонка

Квартира, выходящая на две стороны света.
Такая планировка удобна для семей, у которых случаются семейные или дружеские посиделки на кухне в вечернее время. Когда кто-то захочет пойти спать, можно уйти в спальню на противоположной стороне квартиры, и гости не будут мешать отдыху.
Часто к минусам таких квартир относят сквозняк при открытых окнах в разных частях квартиры. Но в жаркое время это может быть даже плюсом, ведь присутствует поток свежего воздуха.
Линейная планировка

Все окна такой квартиры выходят на
одну сторону. Ее плюсы и минусы противоположны линейной — нет сквозняков, но в случае жаркой погоды проветрить ее куда сложнее.
Угловая планировка

Окна такой квартиры будут выходить на
две и более стороны света. Хорошее решение для тех, кто не может решить: окна должны быть на восток или на юг. Особенно такие решения удачны,когда в угловой комнате большое окно, повторяющее изгиб здания.
Важно. В советское время угловые квартиры не любили. Они были куда холоднее, чем остальные в доме. В отличие от квартир в середине дома, у угловых две стены выходили на
улицу. Из-за чего в помещении было более свежо, чем в остальных частях квартиры. Сейчас такой проблемы нет благодаря современных технологиям строительства и теплоизоляционным материалам. Которые сохраняют температуру в угловой и любой другой квартирах одинаково.
По количеству помещений
Студия

В такой квартире комната и кухня объединены в одно помещение. Подробно про студии рассказывали здесь.
Евродвушка

Планировка, ставшая популярной в 2017-2018
годах и до сих пор не потерявшая любовь покупателей. Самое большое пространство в такой квартире — кухня-гостиная. Спальня меньше, так как эта зона должна быть приватная. А встречи с друзьями и родными куда удобнее проводить в просторном помещении кухни-гостиной. У евродвушки есть вариации и в остальных видах планировок — евро-трехкомнатных, евро-четырехкомнатных квартир. Большая часть девелоперов отдает предпочтение именно таким европланировкам, так как они закрывают потребности современных покупателей в полной мере.
Квартира с мастер-спальней

Отдельный санузел, в который можно попасть только из спальни. Когда он дополняется гардеробной, уже получается полноформатная мастер-спальня. Такие примеры вы наверняка видели в американских фильмах. Подобный формат очень удобен, когда в семье есть дети. У родителей получается собственная ванная комната.
Двухуровневая квартира

Такие планировки можно встретить в премиальном, люкс и делюкс сегментах. В этом случае вы получаете квартиру, расположенную на двух этажах. И в зависимости от конфигурации, на втором этаже можно расположить либо приватную зону спален, собирая гостей только на первом этаже, либо наоборот — оставить первый этаж приватным, а все званые ужины и бранчи проводить на втором.
Свободная планировка

Такой вариант опять же встречается только в высоком ценовом сегменте. Застройщик не делает никаких несущих стен, только пилоны (колонны), которые должны быть в
помещении с точки зрения безопасности всего конструктива. Это дает возможность покупателю сделать столько комнат и
такую конфигурацию квартиры, которую захочет он себе сам.
Плюсы и минусы разных видов планировок
К этому вопросу стоит подойти немного философски. Так как не бывает плохих или хороших планировок. Но бывает хорошее или плохое проектирование, которое и создает плюсы или минусы той или иной квартиры. Разберем на примерах.
2-евроквартира:
![]() | ![]() |
| Неправильные углы, которые делают невозможным расставить хоть какую-то мебель | Правильная форма всех помещений + приватная мастер-спальня (несмотря на то, что это всего лишь 1-комнатная квартира) |
| Очень мало света | Два больших окна, обеспечивающие высокий уровень инсоляции |
| Бестолковые 17 метров коридора | Компактный коридор с местом под сезонную одежду + гардеробная и гостевой санузел при входе |
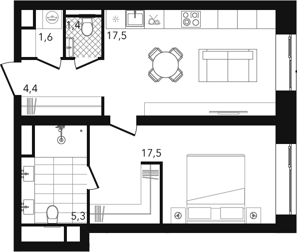
3-евро квартира:
![]() | ![]() |
| Неправильные кривые углы, создающие сложность при заказе и расстановке мебели | Все помещения правильной формы с прямыми углами. Удобно разместить любую мебель стандартных размеров. |
| Длинный и узкий коридор, «съедающий» 11 квадратов | Маленькая зона прихожей (3 метра), но удобная гардеробная при входе |
| Большие спальни, которые будут либо полу-пустые, либо забитые шкафами. Не очень понятно, как использовать 27 квадратов в такой комнате. | Эргономичные спальни, сохраняющие весь необходимый функционал, но без переплаты за лишние метры |
Условные обозначения на планировке квартиры

- дверной проем.
- обозначение электрической плиты. Самой плиты не будет, только высоковольтная розетка для ее подключения.
- обозначение раковины. Как и с плитой — раковины не будет, только выводы под горячую и холодную воду.
- в случае квартиры с отделкой здесь будут установлены раковина и унитаз. В случае квартиры без отделки — выводы под ГВС и ХВС и фановая труба.
- окно.
- корзина под кондиционер. Может возникнуть мысль, что это балкон. Но это можно проверить в следующем пункте.
- таблица с площадями квартиры:
— 51,27 — жилая площадь (только комнаты);
— 88,24 — общая площадь (все помещения внутри квартиры);
— 88,24 — общая приведенная площадь. Это общая площадь + балконы или лоджии с понижающим коэффициентом (0.3 и 0.5 соответственно). Здесь мы видим, что общая и приведенная площади одинаковые. Следовательно, в пункте 6 действительно была корзина под кондиционер. - площадь конкретного помещения внутри границ.
- обозначение несущей стены (или несущей части стены).
- обозначение ненесущей стены.
- пунктирная линия присутствует только на планировке, в жизни ее не будет. Условное обозначение границы части выделенного помещения. Чаще используется для того, чтобы показать площадь конкретной части большой территории.
Что важно учесть при выборе планировки
Во-первых и самых главных: она должна нравится именно вам. Кто бы что ни говорил. Если вы понимаете, что вас все устраивает и вы знаете, как обыграете вот этот кривой угол или эту непонятную нишу — вперед. Но не стоит забывать и о практической части.
Важно. Рекомендуем не гнаться только за метражом. Времена, когда хорошая квартира = большая квартира уже прошли. Современный подход к проектированию квартир позволяет сделать 38-метровую однокомнатную куда более практичной и удобной, чем 50-метровую.
Примеры удачных планировок 

«Аппендикс» с полноценной ванной (что редкость для студии) позволяет удобно расположить всю мебель и сделать полноценную гардеробную (!) в студийной планировке. А широкое окно почти во всю стену увеличивает количество естественного освещения в комнате.

В коридоре и спальне удобные зоны для организации хранения личных вещей. Кухонные блоки разделены на две части, что позволяет более экономично использовать пространство. Кстати, вот эти дверцы около окон — балконные двери. Конкретно в этом варианте 0,63 и 0,86 — это маленькие французские балконы. Хранить варенье и зимнюю резину там не получится, но вот создать ощущение, что ты где-то в Париже — очень даже.

Полноформатная мастер-спальня у родителей, отдельная ванная у ребенка, кухня-гостиная с панорамным угловым остеклением, выделенные места для хранения, комфортные рабочие зоны для ребенка и родителей. Пожалуй, так выглядит идеальная квартира для семьи с одним ребенком.
Современные тренды в планировках 
Мастер-спальни. Отдельная приватная ванная или ванная и гардеробной — мечта любой хозяйки дома. Это действительно очень удобно. Особенно, когда в семье есть дети или часто приходят гости.

Окно в ванной. Это безумно красиво и добавляет изюминку даже в самую обычную квартиру.

Окна увеличенного размера. Делают пространство более воздушным, а комнату просторной. Отлично работает в компактных квартирах.

Пять секретов успешной планировки квартиры
- Эргономика. Больше метров не всегда лучше. Важнее, чтобы в квартире разместилось все то, что надо именно вам. И не факт, что для этого потребуется огромная площадь.
- Прямые углы. Большая часть помещений должна быть квадратной или прямоугольной формы, чтобы упростить процесс покупки мебели.
- Зоны для хранения. Это может быть гардеробная, а может просто ниша под шкаф. Но здорово, когда это спроектировано заранее.
- Приватные зоны для всех членов семьи. Жилые комнаты должны быть изолированными. Проходная — максимум кухня-гостиная.
- Большая кухня-гостиная. Собираться всей семьей или принимать гостей куда удобнее в этой зоне, чем звать всех к себе в спальню.
А самое главное, чтобы квартира нравилась именно вам. Ведь вам в ней и жить. Чтобы найти свою ту самую планировку, оставьте заявку здесь. Наши специалисты подберут идеальный вариант по всем вашим пожеланиям.





за Ваш комментарий!
Он будет опубликован после проверки модератором